A Prefeitura de Campo Grande destravou na sexta-feira (17) a obra de conclusão da Escola Vila Nathália, localizada no bairro Caiobá II, região urbana do Lagoa. O investimento total será de R$ 4,7 milhões, com recursos provenientes de convênio federal, e marca a retomada de mais um empreendimento que estava paralisado na Capital.
A prefeita Adriane Lopes destacou a importância da retomada da obra para a região. “Sexta-feira de boas notícias e hoje estamos destravando mais uma obra que estava parada em Campo Grande. Na escola da Vila Nathália, serão investidos R$ 4,7 milhões para a retomada desta escola, que vai trazer mais uma oportunidade para esta região e para o crescimento das nossas crianças. A gente segue com muito trabalho por Campo Grande”.
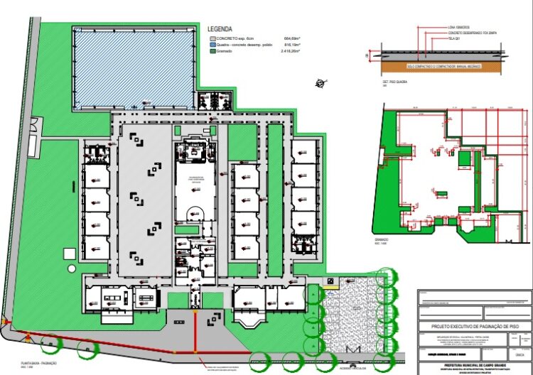
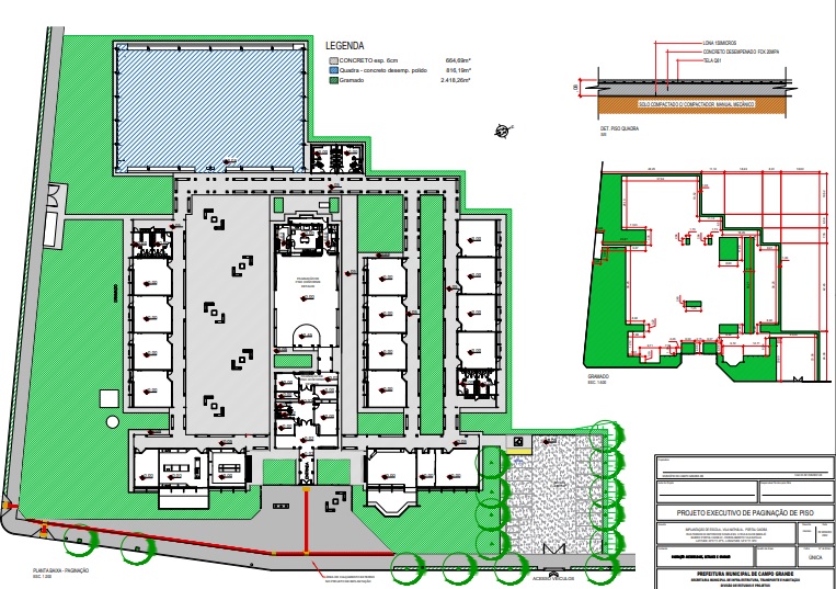
A contratação da empresa responsável já foi validada, com previsão de execução da obra em até 12 meses. O projeto prevê a finalização de uma unidade padrão do Fundo Nacional de Desenvolvimento da Educação (FNDE), com estrutura completa para atender a comunidade.

Sobre a estrutura
A escola terá capacidade para até 780 alunos em dois turnos (matutino e vespertino), além de 390 estudantes em período integral. O espaço contará com 12 salas de aula, pátio coberto, quadra poliesportiva coberta, biblioteca, laboratório, sala de informática e sala multiuso, distribuídos em oito blocos.
Além da estrutura física, a obra inclui a instalação completa de sistemas elétricos, hidráulicos, climatização, rede de gás, segurança contra incêndio e descargas atmosféricas.

A empresa Predial Construções Ltda. foi a vencedora do processo licitatório e será responsável pela execução da obra, com prazo estimado de 12 meses para conclusão. Do valor total do investimento, cerca de R$ 3,3 milhões estão previstos para execução ainda em 2026, com o restante programado para 2027.

A retomada da construção atende à demanda por ampliação da rede pública de ensino e reforça o compromisso da administração municipal com a educação e o desenvolvimento urbano da cidade.




















